Mildred Flats by AM Titan is a striking redevelopment that revitalized the entire corner of 8th & Greenup in Covington, KY. Situated directly across from Randolph Park, this project introduces 19 newly redeveloped apartments designed with modern finishes, spacious layouts, and premium conveniences. Residents benefit from off-street parking, in-unit washer and dryer, and more. Mildred FLats offers a prime urban lifestyle in one of Covington’s most vibrant neighborhoods.


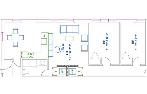
2 Bed | 1 Bath | 865 sqft

2 Bed | 1 Bath | 835 sqft